名称:一种可扩展且采用裹夹接触摩擦式刷洗的洗碗机
专利号:202422201764.9
专利权人:庞甲才
技术领域
本实用新型涉及洗碗机领域,尤其是一种可扩展且采用裹夹接触摩擦式刷洗的洗碗机。
背景技术
洗碗机是代替人工劳动进行清洗厨用品的机器,其设计指标需要考虑清洗洁净度效果,然而现有市面上的洗碗机洗碗碟方式为用水冲淋,受水压压力限制和冲淋位置难以覆盖碗碟的原因影响,清洗效果较差,会导致污垢难以彻底清除;而且用水冲淋方式能耗高,不符合节能减排的环保要求;进一步,现有的洗碗机缺少自清洁功能,需要定期清理积累在其中的污垢。
公开于该背景技术部分的信息仅仅旨在增加对本实用新型的总体背景的理解,而不应当被视为承认或以任何形式暗示该信息构成已为本领域一般技术人员所公知的现有技术。
实用新型内容
本实用新型目的是提供一种可扩展且采用裹夹接触摩擦式刷洗的洗碗机,能够解决背景技术存在的问题。
为实现上述目的,本实用新型提供一种可扩展且采用裹夹接触摩擦式刷洗的洗碗机,包括:清洁部,所述清洁部包括刷洗件,所述刷洗件包括第一刷头与第二刷头,多个所述第一刷头的刷毛与多个所述第二刷头的刷毛相对设置;动力部,所述动力部包括传动件,所述传动件包括一类传动体与二类传动体;所述第一刷头连接所述一类传动体,所述第二刷头连接所述二类传动体,所述一类传动体与所述二类传动体啮合连接;结构部,所述结构部包括隔板件与连接件,多个所述隔板件的板体平行设置,所述连接件连接多个所述隔板件,所述一类传动体与二类传动体活动连接在所述隔板件的板面。
在一个或多个实施方式中,所述结构部还包括外壳,所述外壳为顶部半开放的盒状壳体结构,所述外壳尺寸大于所述隔板件与连接件组成的框架结构;所述外壳包裹所述隔板件与连接件组成的框架结构设置,所述隔板件设置多个轴孔,所述外壳设置多个轴孔,多个所述轴孔位于垂直于所述隔板件的同一垂线上;所述传动件还包括转轴,所述轴孔的尺寸配合所述转轴的直径设置,所述转轴位于所述垂线上,所述转轴穿过多个所述轴孔设置。
在一个或多个实施方式中,所述一种可扩展且采用裹夹接触摩擦式刷洗的洗碗机还包括电控箱,所述电控箱包括启动按钮、停止按钮、接触开关、时间继电器、漏电开关,所述接触开关、时间继电器、漏电开关设置于所述外壳内部,并电连接所述电控箱;
所述启动按钮与停止按钮设置在所述电控箱表面,所述电控箱用于控制所述第一刷头与第二刷头转动。
在一个或多个实施方式中,所述电控箱还包括电机与机芯,所述机芯与所述电机电连接,所述转轴啮合所述电机的转子。
在一个或多个实施方式中,所述传动件还包括三类传动体,所述三类传动体环设在所述转轴上。
在一个或多个实施方式中,所述传动件还包括四类传动体,所述一类传动体、二类传动体、三类传动体与四类传动体为转轴与所述隔板件连接的齿轮结构;其中,一个或多个所述一类传动体与所述三类传动体啮合,一个或多个所述四类传动体与所述三类传动体啮合。
在一个或多个实施方式中,所述隔板件的数量为奇数个;当所述隔板件数量为3个时:连接在两侧的所述隔板件的传动体包括所述一类传动体、二类传动体与三类传动体,其中,所述一类传动体与所述三类传动体连接;连接在中部的所述隔板件的传动体包括所述一类传动体、二类传动体、三类传动体与四类传动体,其中,所述四类传动体与所述三类传动体啮合,所述二类传动体与所述四类传动体啮合,与所述四类传动体连接的所述二类传动体与所述三类传动体错位设置。
在一个或多个实施方式中,所述外壳还包括水帘板与缺口,所述水帘板两侧为挡板结构,中间为开孔结构;所述缺口位置与数量配合所述水帘板两侧的所述挡板结构设置,所述水帘板用于开闭所述缺口。
在一个或多个实施方式中,所述一种可扩展且采用裹夹接触摩擦式刷洗的洗碗机还包括冲洗水路,所述冲洗水路包括水阀与冲淋管,所述水阀与自来水水源连接,所述冲淋管与水阀连接。
在一个或多个实施方式中,所述外壳内部底部还包括半圆碗托,所述半圆碗托设置于多个相邻隔板的之间,用于定位碗具。
与现有技术相比,本实用新型提供的多个技术方案与实施例,至少包括如下技术效果或优点:
通过设置第四传动体,动力加载在同转轴同时,实现多个相对刷头反转,提高清洁效率,且节省了内部空间;第一刷头与第二刷头能够彼此反转清洁,具有自清洁功能;通过接触摩擦方式擦除污垢,代替高压水流冲洗,节能环保。
附图说明
此处所说明的附图用来提供对本发明的进一步理解,构成本申请的一部分,本发明的示意性实施例及其说明用于解释本发明,能够认为是优选实施方式的多种组合结果示意,并不构成对本发明的不当限定。在附图中:
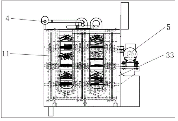
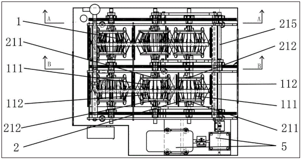
图1为本实用新型提供的一种可扩展且采用裹夹接触摩擦式刷洗的洗碗机的俯视整体结构示意图;
图2为本实用新型提供的一种可扩展且采用裹夹接触摩擦式刷洗的洗碗机图1中A-A面截面结构示意图;
图3为本实用新型提供的一种可扩展且采用裹夹接触摩擦式刷洗的洗碗机图1中B-B面截面结构示意图;
图4为本实用新型提供的一种可扩展且采用裹夹接触摩擦式刷洗的洗碗机的主视整体结构示意图;
图5为本实用新型提供的一种可扩展且采用裹夹接触摩擦式刷洗的洗碗机的隔板件与连接件的连接结构示意图;
图6为本实用新型提供的一种可扩展且采用裹夹接触摩擦式刷洗的洗碗机的水帘板的连接结构示意图;
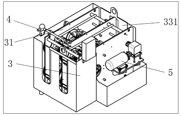
图7为本实用新型提供的一种可扩展且采用裹夹接触摩擦式刷洗的洗碗机的立体结构示意图;
图中的标号分别代表:1-清洁部,11-刷洗件,111-第一刷头,112-第二刷头,2-动力部,21-传动件,211-一类传动体,212-二类传动体,213-三类传动体,214-四类传动体,215-转轴,216-轴孔,3-结构部,31-隔板件,32-连接件,33-外壳,331-水帘板,4-冲洗水路,5-电控箱。
具体实施方式
除非另有其它明确表示,否则在整个说明书和权利要求书中,术语“包括”或其变换如“包含”或“包括有”“为……制成”等等将被理解为包括所陈述的元件或组成部分,而并未排除其它元件或其它组成部分。
本实用新型目的是提供一种可扩展且采用裹夹接触摩擦式刷洗的洗碗机,实现节省能耗;提高清洁效果,尤其是对于顽固污垢清洁效率好;且具有自清洁功能的效果。
实施例一:
本实施例提供了一种可扩展且采用裹夹接触摩擦式刷洗的洗碗机,其特征在于,包括:清洁部1,所述清洁部1包括刷洗件11,所述刷洗件11包括第一刷头111与第二刷头112,多个所述第一刷头111的刷毛与多个所述第二刷头112的刷毛相对设置;动力部2,所述动力部2包括传动件21,所述传动件21包括一类传动体211与二类传动体212;所述第一刷头111连接所述一类传动体211,所述第二刷头112连接所述二类传动体212,所述一类传动体211与所述二类传动体212啮合连接;结构部3,所述结构部3包括隔板件31与连接件32,多个所述隔板件31的板体平行设置,所述连接件32连接多个所述隔板件31,所述一类传动体211与二类传动体212活动连接在所述隔板件31的板面。优选地,所述一种可扩展且采用裹夹接触摩擦式刷洗的洗碗机还包括冲洗水路4,所述冲洗水路4包括水阀与冲淋管,所述水阀与自来水水源连接,所述冲淋管与水阀连接。
具体的,为了提供更好的洗刷碗具效果,减少能耗,如图1-7所示,设置刷毛相对的所述第一刷头111与第二刷头112,所述一类传动体211与二类传动体212啮合,且刷头分别固定所述一类传动体211与二类传动体212;当所述一种可扩展且采用裹夹接触摩擦式刷洗的洗碗机启动后,所述一类传动体211与二类传动体212啮合转动时针方向相反,带动所述第一刷头111与第二刷头112反时针方向转动,清洁效果更好;现有的喷水冲淋冲洗,需要较高的水压与能量,且仅凭借水压冲洗碗具,顽固的污垢无法去除,本实施方式清洁碗具时主要通过机械传动带动刷头接触摩擦清洁,对于冲淋水压需求较低,节省能耗,并对于顽固污垢清洁效率更好;进一步,所述第一刷头111与第二刷头112能够在无碗具时转动互相转动清洗,实现自清洁功能。
作为本实施例的一个优选实施方式,所述结构部3还包括外壳33,所述外壳33为顶部半开放的盒状壳体结构,所述外壳33尺寸大于所述隔板件31与连接件32组成的框架结构;所述外壳33包裹所述隔板件31与连接件32组成的框架结构设置,所述隔板件31设置多个轴孔216,所述外壳33设置多个轴孔216,多个所述轴孔216位于垂直于所述隔板件31的同一垂线上;所述传动件21还包括转轴215,所述轴孔216的尺寸配合所述转轴215的直径设置,所述转轴215位于所述垂线上,所述转轴215穿过多个所述轴孔216设置。
具体的,如图5所示,所述隔板件31与连接件32组合形成支撑整体结构为作用的框架结构,设置包裹所述框架结构的外壳33,所述外壳33尺寸略大于所述框架结构,并通过底部与侧面同所述框架结构连接实现固定;设置转轴215垂直于所述隔板件31,并穿过多个轴孔216,所述转轴215用于传递动力,由于外壳33内部常有供水的原因,因此动力供能装置置于外部,并通过转轴215传递动力到所述外壳33的内部,保护动力供能装置。所述隔板件31与所述连接件32为尼龙材质,所述框架结构具有多种可扩展性,能够设置为任意数量任意尺寸的组合。
作为本实施例的一个优选实施方式,所述一种可扩展且采用裹夹接触摩擦式刷洗的洗碗机还包括电控箱5,所述电控箱5包括启动按钮、停止按钮、接触开关、时间继电器、漏电开关,所述接触开关、时间继电器、漏电开关设置于所述外壳33内部,并电连接所述电控箱5;所述启动按钮与停止按钮设置在所述电控箱5表面,所述电控箱5用于控制所述第一刷头111与第二刷头112转动。优选地,所述电控箱5还包括电机与机芯,所述机芯与所述电机电连接,所述转轴215啮合所述电机的转子。
具体的,为了提供刷头动力,供能装置采用电机供能,并通过转子啮合所述转轴215,所述啮合指的是采用涡轮蜗杆减速机实现动力方向的变化,所述电控箱5设置多个传感装置,避免洗碗机出现多种故障,所述时间继电器用于水阀的延时通电打开,洗碗机启动后时间继电器开始延时,延时若干秒后,水阀得电打开阀芯,自来水通过常闭水阀流出冲淋碗碟,冲洗时间可调。漏电开关是电控箱5的安全保障,当所述漏电开关感应到外壳33内任一处漏电,所述漏电开关即自动跳闸关闭电源。
作为本实施例的一个优选实施方式,所述传动件21还包括三类传动体213,所述三类传动体213环设在所述转轴215上。优选地,所述传动件21还包括四类传动体214,所述一类传动体211、二类传动体212、三类传动体213与四类传动体214为转轴215与所述隔板件31连接的齿轮结构;其中,一个或多个所述一类传动体211与所述三类传动体213啮合,一个或多个所述四类传动体214与所述三类传动体213啮合。优选地,所述隔板件31的数量为奇数个;当所述隔板件31数量为3个时:连接在两侧的所述隔板件31的传动体包括所述一类传动体211、二类传动体212与三类传动体213,其中,所述一类传动体211与所述三类传动体213连接;连接在中部的所述隔板件31的传动体包括所述一类传动体211、二类传动体212、三类传动体213与四类传动体214,其中,所述四类传动体214与所述三类传动体213啮合,所述二类传动体212与所述四类传动体214啮合,与所述四类传动体214连接的所述二类传动体212与所述三类传动体213错位设置。
本实施方式能够仅通过转轴215转动带动全部刷头转动。具体的,如图1、2、3对于A-A,B-B的截面所示,为了提供相对刷头反转的技术手段,并且最大可能的简化传动结构,节省有限空间,设置多个所述三类传动体213共轴环设在所述转轴215上,当所述隔板件31数量为3个时,连接在两侧的隔板件31的板面的传动体包括一类传动体211、二类传动体212与三类传动体213,而不包括四类传动体214;连接在两中间的隔板件31的板面的传动体包括一类传动体211、二类传动体212、三类传动体213,且包括四类传动体214。
所述四类传动体214仅连接于中部的所述隔板件31,两端分别连接所述二类传动体212与三类传动体213,在齿轮组中多加入所述四类传动体214,能够将中部隔板件31对应位置的所述二类传动体212与一类传动体211,相对两侧隔板件31对应位置的所述一类传动体211与二类传动体212转动时针方向逆转,故实现刷头之间反转;位于中部隔板件31与所述四类传动体214连接的所述二类传动体212向与三类传动体213相反的方向偏移,优选地偏移6毫米,实现所述错位设置,防止所述二类传动体212与所述三类传动体213啮合卡住。
本实施例使用时,采用三种类型传动体与两种类型刷头结构,具体表现为,所述三类传动体213伴随电控件的电机提供动力转动并将动力传递到所述一类传动体211与二类传动体212;当所述隔板件31优选地采用数量为3时,连接在两侧隔板件31的一类传动体211最先啮合所述三类传动体213并伴随反时针转动,而中部隔板件31最先啮合所述三类传动体213为四类传动体214,且一类传动体211与二类传动体212位置对调,所述四类传动体214为加设在所述二类传动体212与三类传动体213之间的齿轮,通过加设四类传动体214,改变对应位置的传动体转动方向,实现第一刷头111与第二刷头112彼此相对并互相反时针旋转,让碗碟在去污介质(洗洁精、小苏打)作用下充分与刷头摩擦,将油污分离,提高清洁能力;并且在非清洁厨具状态,刷头能够通过彼此反转实现互相清洁刷毛,避免油污硬物滞留刷毛导致清洁能力下降。
作为本实施例的一个优选实施方式,所述外壳33还包括水帘板331与缺口,所述水帘板331两侧为挡板结构,中间为开孔结构;所述缺口位置与数量配合所述水帘板331两侧的所述挡板结构设置,所述水帘板331用于开闭所述缺口。
具体的,如图6、7所示,水帘板331侧向推拉,能够实现所述缺口的活动开闭,便于收放碗具。当所述水帘板331位于中心位置,所述挡板结构遮挡所述缺口实现闭合;当所述水帘板331位于侧方,所述开孔结构位置与所述缺口贴合,实现开启所述缺口以便碗具收放。
作为本实施例的一个优选实施方式,所述外壳33内部底部还包括半圆碗托,所述半圆碗托设置于多个相邻隔板的之间,用于定位碗具。
前述对本实用新型的具体示例性实施方案的描述是为了说明和例证的目的。这些描述并非想将本实用新型限定为所公开的精确形式,并且很显然,根据上述教导,可以进行很多改变和变化。对示例性实施例进行选择和描述的目的在于解释本实用新型的特定原理及其实际应用,从而使得本领域的技术人员能够实现并利用本实用新型的各种不同的示例性实施方案以及各种不同的选择和改变。本实用新型的范围意在由权利要求书及其等同形式所限定。





