名称:一种水陆潮汐缸
专利号:202411548322.X
专利权人:马晓途
技术领域
本发明涉及鱼缸领域,特别涉及一种水陆潮汐缸。
背景技术
在现有技术中水陆潮汐缸内的陆地层和水位于同一区域。当水陆潮汐缸内的水涨潮后,水位上升,陆地层被水淹没,排出内部空气;当水陆潮汐缸内的水退潮后,陆地层露出水面,排出内部积水,让空气再次进入陆地层。为了维持陆地层的良好透气性,以利于潮间带生物的生长,退潮时,陆地层应尽可能多地露出水面,但这样一来,缸内的水位需要下降到很低的位置,这样又不利于水生生物的生长。因此,如何在水陆潮汐缸处于低潮位时既能够确保陆地层能够充分露出水面,同时又能够确保水陆潮汐缸内仍有较高水位,从而兼顾潮间带生物和水生生物的生长,是本领域技术人员亟待解决的关键性问题。
发明内容
有鉴于此,本发明的目的是在水陆潮汐缸处于低潮位时既能够确保陆地层能够充分露出水面,同时又能够确保水陆潮汐缸在低潮位时仍有较高的水位,从而利于潮间带生物和水生生物的生长。
为实现上述目的,本发明提供如下技术方案:
一种水陆潮汐缸,包括主缸和底缸,还包括:
分隔板,所述分隔板设置在所述主缸内,所述分隔板将所述主缸分隔为水区和至少一个陆地区,所述水区内的水可通过所述分隔板溢流入所述陆地区,所述分隔板的溢流高度低于所述水区的高潮位,高于所述水区的低潮位;
溢流装置和下水区,所述水区内高于所述低潮位的水通过所述溢流装置溢流到所述下水区;
第一下水管、第二下水管以及第三下水管,所述第一下水管和所述第二下水管设置在所述下水区,所述第一下水管的进水口高于所述第二下水管的进水口,所述第二下水管的进水口不高于所述溢流装置的溢流高度,所述第三下水管的进水口与所述陆地区连通,所述第一下水管的出水口、所述第二下水管的出水口以及所述第三下水管的出水口均与所述底缸连通,所述第二下水管上设置有电动球阀;
第一上水管和水泵,所述水泵设置在所述底缸内,所述水泵的出水口与所述第一上水管的进水口连通,所述第一上水管的出水口与所述水区连通。
优选地,在上述水陆潮汐缸中,所述下水区为设置在所述主缸的主缸侧板的背包,所述背包包括背包侧板和背包底板,所述背包侧板包括与所述主缸侧板相对第一侧板、位于所述第一侧板与所述主缸侧板之间的前侧板和后侧板,所述主缸侧板与所述背包侧板对应的部分、所述背包侧板以及所述背包底板共同围成所述下水区,所述第一下水管和所述第二下水管的进水口位于所述背包;
所述溢流装置包括:
第一拦鱼梳,设置在所述主缸侧板的内侧,所述第一拦鱼梳与所述主缸侧板围成第一溢流通道,所述第一拦鱼梳的下部和上部分别设置有第一拦鱼孔,所述第一拦鱼孔连通所述水区和所述第一溢流通道;
开设在所述主缸侧板的缺口,所述缺口与所述背包的上端位置对应连通。
优选地,在上述水陆潮汐缸中,所述下水区为设置在所述水区内的外管,所述外管的上部和下部分别设置有与所述水区连通的第二拦鱼孔,所述第一下水管和所述第二下水管位于所述外管内,且所述第二下水管套设在所述第一下水管外。
优选地,在上述水陆潮汐缸中,所述水区内的水通过所述分隔板的顶面溢流入所述陆地区。
优选地,在上述水陆潮汐缸中,所述分隔板的顶面高于所述水区的高潮位,所述分隔板的上部设置有连通管,所述连通管的高度高于所述低潮位且低于所述高潮位,所述水区内的水通过所述连通管溢流入所述陆地区,所述连通管的流通截面可调。
优选地,在上述水陆潮汐缸中,所述陆地区的陆地层的上表面设置有潮池,所述潮池位于所述连通管的出水口的下方;
所述潮池的池壁设置有防滑网格板。
优选地,在上述水陆潮汐缸中,所述分隔板包括分隔板主体,还包括设置于所述分隔板主体背对所述水区一侧的水槽,所述水槽靠近所述水区的一侧与所述水区连通,所述水槽远离所述水区的一侧具有第一槽侧板,所述第一槽侧板的顶面高于所述水区的高潮位,所述连通管设置在所述第一槽侧板上。
优选地,在上述水陆潮汐缸中,在所述水槽靠近所述水区的一侧,所述分隔板主体的上部形成所述水槽的第二槽侧板,所述第二槽侧板的顶面低于所述水区的低潮位。
优选地,在上述水陆潮汐缸中,所述分隔板自下而上逐渐向所述陆地区倾斜,所述分隔板的靠近所述水区的一侧设置有防滑网格板;或,
所述分隔板沿竖直方向设置,所述分隔板的靠近所述水区的一侧设置有防滑网格板。
优选地,在上述水陆潮汐缸中,所述陆地区的底部设置有过滤层,所述过滤层阻隔沙子,通水流;所述过滤层的下方设置有底滤架,所述底滤架使所述过滤层与所述陆地区的底板之间形成流水空间,所述过滤层的上方用于设置陆地层。
优选地,在上述水陆潮汐缸中,所述过滤层由纳米砖形成,或者由过滤网形成。
优选地,在上述水陆潮汐缸中,所述纳米砖的下方设置有纳米砖凸起,所述纳米砖凸起向所述流水空间凸出,所述流水空间内的水可通过所述纳米砖凸起以及所述纳米砖向上渗入所述陆地层。
优选地,在上述水陆潮汐缸中,还包括第二上水管,所述第二上水管的进水口与所述水泵的出水口连通,所述第二上水管的出水口设置有用于改变出水方向的支管,所述支管位于所述流水空间内,以防水流冲击所述过滤层。
优选地,在上述水陆潮汐缸中,还包括喷淋装置,所述喷淋装置包括至少一个喷嘴以及与所述喷嘴连接的喷淋管,所述喷淋管的进水口与淡水源连通,所述喷淋管的出水口与所述喷嘴连通,用于清洗所述主缸的内壁。
优选地,在上述水陆潮汐缸中,所述底缸内设置有多组分格板组,所述底缸的内部区域被多组所述分格板组分隔为多个功能格,进入所述底缸内的水依次流经各个所述功能格;
所述分格板组包括相对设置的挡流板和溢流板,所述挡流板的底部与所述底缸的底板之间形成第一水流通道,所述挡流板与所述溢流板之间形成第二水流通道,上游的所述功能格内的水依次通过所述第一水流通道、所述第二水流通道以及所述溢流板的上方空间流入下游的所述功能格内;
沿着水流方向,各个所述分格板组中的所述溢流板的高度依次降低。
优选地,在上述水陆潮汐缸中,多个所述功能格中包含蛋分格,组成所述蛋分格的两个所述分格板组的所述溢流板高于其它所述分格板组中的所述溢流板,位于所述蛋分格的上游的所述溢流板比位于所述蛋分格的下游的所述溢流板的高度高0-3cm。
优选地,在上述水陆潮汐缸中,所述第三下水管上设置有调节阀,用于减少所述第三下水管的下水噪音。
优选地,在上述水陆潮汐缸中,所述主缸具有一个所述水区和一个所述陆地区;或,
所述主缸具有一个所述水区和两个所述陆地区,所述水区位于两个所述陆地区之间,所述水区通过所述溢流装置与两个所述陆地区连通。
从上述技术方案可以看出:水区的低潮位的高度是由溢流装置的溢流高度决定,只要溢流装置的溢流高度较高,那么水区低潮位的高度也就较高。因此水区在低潮位时仍然可具有较高的水位,以满足水生生物对水的需求。另一方面,陆地区内部的积水能够通过第三下水管排出到底缸,因此陆地区内的陆地层能够全部露出,形成比较深厚且透气的陆地层,以满足潮间带生物对陆地层的需求。水区的涨落潮幅度只需数厘米,但陆地区透气陆地层的厚度可达数十厘米,能满足大多数潮间带穴居生物的需求。
本发明中的水陆潮汐缸的水区在处于低潮位时仍有较高的水位,同时在陆地区具有较深厚的陆地层,因此能够满足潮间带生物对陆地层的需求及水生生物对水量的需求,利于潮间带生物的生长。另外较深厚的陆地层可供潮间带穴居生物挖掘较深的洞穴,有利于其生存,并提高了观赏性。
附图说明
为了更清楚地说明本发明实施例或现有技术中的技术方案,下面对实施例或现有技术描述中所需要使用的附图作简单地介绍,显而易见的,下面描述中的附图仅仅是本发明的实施例,对于本领域普通技术人员来讲,在不付出创造性劳动的前提下,还可以根据提供的附图获得其他的附图。
图1为本发明具体实施例提供的空缸时水陆潮汐缸的结构示意图;
图2为本发明具体实施例提供的涨潮初始阶段水陆潮汐缸的结构示意图;
图3为本发明具体实施例提供的涨潮最终阶段水陆潮汐缸的结构示意图;
图4为本发明具体实施例提供的退潮初始阶段水陆潮汐缸的结构示意图;
图5为本发明具体实施例提供的退潮最终阶段水陆潮汐缸的结构示意图;
图6为本发明具体实施例提供的水区处于低潮位时水陆潮汐缸的结构示意图;
图7为本发明具体实施例提供的通过三重溢流下水管下水的水陆潮汐缸的结构示意图;
图8为本发明具体实施例提供的陆地层为沙滩时水陆潮汐缸处于空缸状态的结构示意图;
图9为本发明具体实施例提供的陆地层为沙滩时水陆潮汐缸处于低潮位的结构示意图;
图10为本发明具体实施例提供的陆地层为沙滩时水陆潮汐缸处于高潮位的结构示意图;
图11为本发明具体实施例提供的水陆潮汐缸处于空缸状态时的结构示意图;
图12为本发明具体实施例提供的分隔板倾斜布置的水陆潮汐缸的结构示意图;
图13为本发明具体实施例提供的包含过滤网的水陆潮汐缸的结构示意图;
图14为本发明具体实施例提供的水区退潮时底缸的水位图;
图15为本发明具体实施例提供的水区涨潮时底缸的水位图;
图16为本发明具体实施例提供的水区退潮时底缸的水位图;
图17为本发明具体实施例提供的水区涨潮时底缸的水位图;
图18为本发明具体实施例提供的双陆地水陆潮汐缸处于空缸状态时的结构示意图;
图19为本发明具体实施例提供的通过二重溢流下水管下水的水陆潮汐缸的结构示意图;
图20为本发明具体实施例提供的水陆潮汐缸的俯视图。
其中,各部件名称如下:
1-主缸、101-水区、102-陆地区、103-分隔板、1031-分隔板主体、1032-第一槽侧板、104-下水区、105-第一下水管、106-第二下水管、107-第一上水管、108-电动球阀、109-背包侧板、110-背包底板、111-第二上水管、112-第三下水管、113-纳米砖、114-底滤架、115-拦鱼梳、116-潮池、117-陆地层、118-主缸侧板、1181-缺口、119-防滑网格板、120-连通管、121-水槽、122-纳米砖凸起、122-外管、123-过滤网、2-底缸、201-过滤装置、202-挡流板、203-溢流板、204-水泵、205-功能格、3-喷淋装置、301-喷淋管、302-喷嘴。
具体实施方式
有鉴于此,本发明的核心在于设计一种水陆潮汐缸,在水陆潮汐缸处于低潮位时既能够确保陆地层较深厚且透气性良好,同时又能够确保水陆潮汐缸内具有较高的水位,从而利于潮间带生物和水生生物的生长。
为了使本技术领域的人员更好地理解本发明方案,下面结合附图和具体实施方式对本发明作进一步的详细说明。
本发明公开了一种水陆潮汐缸,请参考附图1,附图1为本发明具体实施例提供的空缸时水陆潮汐缸的结构示意图。水陆潮汐缸包括主缸1和底缸2,特别地,还包括分隔板103、溢流装置、下水区104、第一下水管105、第二下水管106、第三下水管112、第一上水管107以及水泵204。
其中,分隔板103可以为玻璃板,与主缸1前后侧板以及底板相连,且连接处不留缝隙,从而将主缸1分隔为陆地区102和水区101。主缸1内分隔板103的个数至少为一个,如图1-图13所示,为主缸1内具有一个分隔板103的实施例,将主缸1分隔为一个陆地区102和一个水区101;如图18所示,为主缸1内具有两个分隔板103的实施例,将主缸1分隔为两个陆地区102和一个水区101,两个陆地区102位于水区101的两侧。在主缸1具有两个分隔板103的实施例,两个陆地区102和一个水区101可以呈直线型排布,也可以呈L型排布,或T型排布等。
水区101内的水可通过分隔板103溢流入陆地区102,分隔板103的溢流高度低于水区101的高潮位,同时高于水区101的低潮位。
溢流装置用于使水区101内的水溢流入下水区104,可选地,溢流装置的高度与低潮位平齐。第一下水管105和第二下水管106均设置在下水区104,第一下水管105的进水口高于第二下水管106的进水口,第二下水管106的进水口不高于溢流装置的溢流高度,以在水区101的水位达到低潮位时,进入下水区104的水通过第二下水管106排出,第一下水管105的进水高度与高潮位平齐,以在水区101的水位101的水位达到高潮位时,进入下水区104的水通过第二下水管106和第一下水管105共同排出。
第三下水管112的进水口与陆地区102连通,用于排出陆地区102内的水。第一下水管105的出水口、第二下水管106的出水口以及第三下水管112的出水口均与底缸2连通。第二下水管106上设置有电动球阀108。
水泵204设置在底缸2内,水泵204的出水口与第一上水管107的进水口连通,第一上水管107的出水口与水区101连通。水泵204通过第一上水管107将底缸2内的水送入到水区101。
假如水陆潮汐缸内的水区101处于高潮位,接下来,电动球阀108开启,第二下水管106开始下水,水区101开始退潮,水区101内的水位开始降低。当水区101内的水位低于第一下水管105后,仅第二下水管106下水,之后,第一上水管107的上水量与第二下水管106的下水量达到平衡,水区101处于低潮位。
分隔板103的溢流高度高于水区101的低潮位,低于水区101的高潮位。当水区101的水位超过分隔板103的溢流高度后,水区101内的水会通过分隔板103溢流入陆地区102,陆地区102内的陆地层117被水淹没。在水区101退潮时,当水区101内的水位低于分隔板103的溢流高度后,水区101内的水不再流入到陆地区102。由于第三下水管112保持畅通,陆地区102内的水会持续地通过第三下水管112进入到的底缸2。只要时间足够,陆地区102内的积水可以完全排出,如此便能够使整个陆地层117露出。
水区101的低潮位的高度是由溢流装置的溢流高度决定,只要溢流装置的溢流高度较高,那么水区101低潮位的高度也就较高。因此水区101在低潮位时仍然可具有较高的水位,以满足水生生物对水的需求。另一方面,陆地区102内部的积水能够通过第三下水管112排出到底缸2,因此陆地区102内的陆地层117能够全部露出,形成较深厚且透气性良好的陆地层117,以满足潮间带生物对陆地层117的需求。水区101的涨落朝幅度只需数厘米,但陆地区102陆地层117的厚度可达数十厘米,能满足大多数潮间带穴居生物的需求。
本发明中的水陆潮汐缸的水区101在处于低潮位时具有较高的水位,同时在陆地区102具有较高的陆地层117,因此能够满足水生生物对水量以及潮间带生物对陆地层117的需求,利于潮间带生物和水生生物的生长。另外较高的陆地层117可供潮间带穴居生物挖掘较深的洞穴,有利于其生存,并提高了观赏性。
电动球阀108由定时开关控制,可以为常开型电动球阀:断电时开启,通电时关闭;也可以为常闭型电动球阀:通电时开启,断电时关闭。这两者在使用上的区别在于定时开关的设置方式不同:若使用常开型电动球阀,定时开关通电时涨潮,断电时退潮;若使用常闭型电动球阀则反之。以下以常开型的电动球阀108为例进行描述。
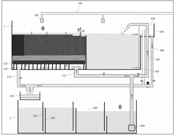
水区101涨潮初始阶段:附图6为水区101处于低潮位时水陆潮汐缸的结构示意图。在附图6中定时开关为断电状态,因此常开型电动球阀108为开启状态,水区101维持在低潮位。当定时开关通电时,电动球阀108关闭,此时水区101停止下水,但第一上水管107的上水照常进行,因此水区101的水位上升,底缸2水位下降,如附图2所示,附图2为涨潮初始阶段水陆潮汐缸的结构示意图。
水区101涨潮最终阶段:请参考附图3,附图3为涨潮最终阶段水陆潮汐缸的结构示意图。随着水区101的涨潮,当水区101内的水位高于分隔板103的溢流高度时,水区101内的水溢流入陆地区102,逐渐将陆地层117表面淹没,并逐渐向下渗透。由于渗透下水的速度很慢,陆地区102的进水速度超过渗透下水速度,陆地区102的水位逐渐上升。陆地区102水位上升后,渗透下水的速度也会随之加快,最终使陆地区102的进水速度和渗透下水速度达到平衡,陆地区102水位维持在一定高度。另一方面,在水区101,随着水位的上涨,水位超过第一下水管105的进水口后,会通过第一下水管105下水,之后第一上水管107的上水量和第一下水管105的下水量逐渐平衡,水区101达到高潮位。
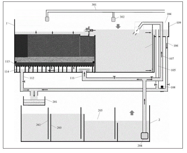
水区101退潮初始阶段:当定时开关断电时,电动球阀108开启,第二下水管106导通,因此下水流量明显增大,主缸1水区101内的水位开始下降,底缸2水位开始上升,请参考附图4,附图4为退潮初始阶段水陆潮汐缸的结构示意图。
当水区101的水位降至分隔板103的溢流高度以下时,水区101停止向陆地区102输送水,陆地区102的水位开始下降。由于陆地区102的水位下降速度远低于水区101,当水区101的水位降到低潮位时,陆地区102的水位只下降了一小部分,但陆地区102的水位会在接下来的一段时间继续下降,露出陆地层117,最终整个陆地层117充分排出内部积水,请参考附图5,附图5为退潮最终阶段水陆潮汐缸的结构示意图。
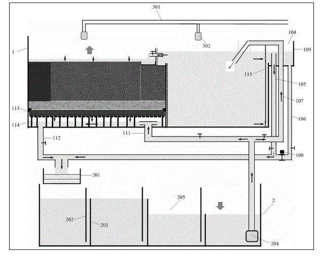
在水区101随着水位的下降,水位低于第一下水管105的进水口,第一下水管105不再下水,之后第二下水管106的下水量与第一上水管107的上水量逐渐达到平衡,水区101维持在低潮位,请参考附图6,附图6为水区101处于低潮位时水陆潮汐缸的结构示意图。
请参考附图1,第一下水管105、第二下水管106以及第三下水管112共用一个总出水口,此总出水口应适当扩大,这样可以避免第一下水管105、第二下水管106以及第三下水管112出水时互相影响,减少下水噪音。总出水口处可以套一个过滤袋,对即将进入到底缸2的水进行过滤。
第一下水管105的进水口决定了水区101高潮位时的水位高度。第一下水管105上设置有调节阀,将调节阀调节至适当幅度,可减少下水管的下水噪音。
第二下水管106在水区101低潮位以及退潮过程中正常下水,第二下水管106上设置有调节阀,调节阀用于减少第二下水管106的噪音。
水泵204优选为可调节流量的变频水泵。
在本发明一具体实施中,水区101向下水区104溢流的方式为背包溢流,附图1-附图6中均为背包溢流,具体结构为:在主缸1的一主缸侧板118的外侧设置有背包,背包具体包括背包侧板109和背包底板110,背包侧板109包括与主缸侧板118相对的第一侧板、位于第一侧板和主缸侧板118之间的前侧板和后侧板,前侧板和后侧板相对,前侧板、后侧板和第一侧板围设成U型结构。主缸侧板118与背包侧板109对应的部分、背包侧板109以及背包底板110共同围成下水区104,该实施例中,下水区104位于水区101外,如此能够确保水区101具有充足的空间。
由上文描述可知水区101内的水通过溢流装置溢流到下水区104,在本实施例中,溢流装置具体包括拦鱼梳115和开设在主缸侧板118的缺口1181,缺口1181与背包的上端位置对应且连通。如图20所示,主缸侧板118仅在对应背包的位置设置缺口1181,主缸侧板118在设置缺口1181后,主缸侧板118设置缺口1181的位置的高度低于主缸侧板118不设置缺口1181位置的高度,拦鱼梳115设置在主缸侧板118的内侧,拦鱼梳115与主缸侧板118围成第一溢流通道。拦鱼梳115的下部和上部分别设置有第一拦鱼孔,第一拦鱼孔连通水区101和第一溢流通道。第一溢流通道通过主缸侧板118顶部的空间与背包,或者说与下水区104连通。
在第二下水管106下水时,水的流向为:水区101内的水通过拦鱼梳115上部和下部的第一拦鱼孔流入到第一溢流通道内,第一溢流通道内的水通过主缸侧板118的顶面溢流入背包内,之后通过第二下水管106流入到底缸2内。
第一上水管107可以位于背包外,也可以位于背包内。在第一上水管107位于背包内的实施例中,第一上水管107贯穿背包底板110后向上伸出,并最终通向水区101。为了节省空间,第一上水管107、第一下水管105以及第二下水管106与主缸侧板118平行布置。本具体实施例中,背包底板110应尽量升高,以减少背包区域的水容量。在水区101处于低潮位时,背包区域的水量很少,而在涨潮时,背包区域的水位也会跟着升高,如果背包区域的水容量较大,就会增加水区101涨潮时所需要的水量,从而需要扩大底缸2的储水容量。
在下水区104为下水背包的实施例中,第一下水管105与第二下水管106可以是单独设置的两根管,如图1所示,第一下水管105与第二下水管106并排布置,第一下水管105与第二下水管106也可以是相互套设连接,具体的,第二下水管106套设在第一下水管105外。
在本发明另一具体实施例中,请参考附图7,附图7为本发明具体实施例提供的下水区104位于水区101内且下水区104为外管122的结构示意图,外管122内设置第一下水管105与第二下水管106,外管122、第一下水管105与第二下水管106构成三重溢流下水管。外管122的顶部具有封盖,外管122的上部和下部分别设置有第二拦鱼孔,第二拦鱼孔供水区101内的水流入到下水区104,同时阻止水区101内的鱼进入到下水区104;第二下水管106套设在第一下水管105外。
在水区101退潮时,当水位低于第一下水管105的进水口后,仅仅通过第二下水管106下水,下水的流程为:水区101内的水通过第二拦鱼孔进入到外管122和第二下水管106之间,之后水通过第二下水管106的进水口溢流入第二下水管106和第一下水管105之间,并最终流入到底缸2。在水区101涨潮时,将电动球阀108关闭,第二下水管106便不再下水,此时的第一下水管105由于其进水口高于水位,也不进行下水,那么只有第一上水管107在向水区101进水,因此水区101开始涨潮。当水区101内的水位高于第一下水管105的进水口后,第一下水管105开始下水,之后第一上水管107的上水量与第一下水管105的下水量逐渐达到平衡,水区101达到高潮位。
在下水区104位于水区101内且下水区104为外管122的实施例中,可以仅在外管122内设置一根内管123,以构成二重溢流管结构,二重溢流管的直径较三重溢流管细,有利于提升水陆潮汐缸的观赏性。二重溢流管的外管122的上下设置有拦鱼梳管,内管123为下水管,下水管通过第一排水管和第二排水管与底缸2连通,第一排水管和第二排水管上均设置有阀门。当两个阀门都开启时,下水管的水同时通过第一排水管和第二排水管进入底缸2,下水流量较大,水区101维持在低潮位;当第一排水管和第二排水管中的一个的阀门关闭时,下水管的水只能通过第一排水管和第二排水管中的另一个进入底缸2,此时下水流量减小,水区101水位上升,而水区101水位升高会导致溢流压力增大,使下水流量逐渐增大,同时由于水泵扬程增大导致上水流量逐渐减小,当水区101水位上升到一定程度时,上下水流量达到平衡,水区101水位不再上升,维持在高潮位。
第一排水管和第二排水管通过总排水管与底缸2连通,第一排水管、第二排水管和总排水管中的至少一个上设置有用于减少低潮位时下水噪音的阀门。
请参考附图8-附图10,附图8为陆地层117为沙滩时水陆潮汐缸处于空缸状态的结构示意图。附图9为陆地层117为沙滩时水陆潮汐缸处于低潮位的结构示意图。附图10为陆地层117为沙滩时水陆潮汐缸处于高潮位的结构示意图。如果陆地区102的陆地层117仅仅为沙滩,不包含滩涂泥,那么就不必考虑包含有滩涂泥的水通过分隔板103流入到水区101而污染水区101的问题。因此,此时的分隔板103可以直接为一块平板。涨潮时水区101的水位会超过分隔板103,直接淹没陆地区102,并且水位可以涨的较高。第一下水管105的进水口也要相应加高,以匹配较高幅度的涨潮。当水区101的水位上升足够高度时,水区101的水生鱼类等生物也会随着潮水游到陆地区102活动,因此提高了水陆潮汐缸的观赏价值。
陆地区102铺设的沙子应稍粗些,尤其是表层,不能铺设细沙,因为在涨潮时,细沙会由于水面张力而飘在水上。如果陆地区102的陆地层117仅仅为沙子,那么就不能饲养招潮蟹,但可以饲养沙蟹等海边沙滩上的生物,也可以种植红树。
请参考附图9,在低潮位时,水区101内的水位低于分隔板103的高度,水区101内的水不再流入到陆地区102。同时第一上水管107的上水量和第二下水管106的下水量达到平衡。
请参考附图10,在高潮位时,水区101内的水与陆地区102内的水连成一片。第一上水管107的上水量与第一下水管105的下水量相平衡。
陆地层117可以仅由沙子形成,还可以由沙子和滩涂泥共同形成。在一具体实施例中,请参考附图2,陆地层117下层为清洗干净的沙子,上层为沙子与滩涂泥混合物。上层还可以留出小部分区域铺设纯的滩涂泥,以满足某些潮间带生物的需求。但由于滩涂泥的透水性很差,因此纯滩涂泥的区域不可过大,以免造成渗透下水困难。另外,滩涂泥有一定黏性,只有在水流较快时才会被冲刷起来,陆地区102向下渗透的水流缓慢,不会冲刷滩涂泥。
陆地区102的沙滩或滩涂表面含有可供潮间带生物取食的有机物(藻类、线虫、有机碎屑等)。其中的藻类和线虫是在有适合光照、有沙子或滩涂泥、适合的盐度、湿度等条件下生长增殖而来;有机碎屑主要来自水区101的浮游生物及其残骸、饲料碎屑、水生生物的粪便微粒等,在水区101涨潮时随水流到达陆地区102,然后留在陆地层117表面。其中,光照可以来自自然阳光,或者适合普通植物生长的人工光源。
如果陆地层117为沙子和滩涂泥共同组成,那么需要避免水区101内的水通过分隔板103的上方空间与陆地区102连通。如果陆地区102内的水和水区101内的水连成一片,陆地区102内的滩涂泥会随着潮水流入到水区101,从而污染水区101。因此在本发明一具体实施例中,限定分隔板103的高度高于水区101的高潮位,而分隔板103的溢流高度低于分隔板103的高度。
具体请参考附图11,附图11为水陆潮汐缸处于空缸状态时的结构示意图。在附图11中的分隔板103上设置了连通管120,连通管120贯穿分隔板103。水区101内的水可通过连通管120溢流入陆地区102。连通管120的高度即为水区101向陆地区102溢流的溢流高度。那么连通管120低于水区101的高潮位,高于水区101的低潮位。连通管120的流通截面可调,以使陆地区102的进水量大于陆地区102的下水量,从而使陆地区102的水位上升,以将陆地层117淹没。连通管120的流通截面决定了陆地区102的高潮位。陆地区102的高潮位低于连通管120。具体可以在连通管120内设置调节阀,通过调节阀调节连通管120的开度。如果调节阀的管道较长,可以直接将调节阀的管道作为连通管120来贯穿分隔板103。连通管120朝向水区101一侧的管口需要设置一个拦鱼网,以防止水区101的鱼类等生物进入。
本发明具体实施例,请参考附图6,在陆地区102的陆地层117的上表面设置了潮池116,该潮池116位于连通管120的出水口的下方。潮池116具体可以为小碟子。潮池116的作用主要是缓和水流,避免连通管120流出的水直接冲击到滩涂泥沙。从连通管120的出水口流出的水首先流入到潮池116内,之后从潮池116溢流到陆地层117的表面。另外,陆地区102的生物可以进入潮池116泡水,潮池116的内壁面应比较粗糙,可以通过在内壁面设置防滑网格板以形成潮池116粗糙的内壁面,也可以在内壁面上设置凹槽和/或凸起以形成潮池116粗糙的内壁面,以方便生物从潮池爬出,回到陆地区102。在铺设完滩涂泥沙后,直接将潮池116放置在连通管120的出水口下方。为了提高潮池116的稳定性,可以将潮池116的底部沉入陆地层117内。如此同时降低了潮池116的池口与陆地层117上表面的距离,从而进一步减缓水流对陆地层117的冲击力,同时利于陆地区102的各种生物爬入到潮池116内。
对于水陆潮汐缸内的一些生物,比如弹涂鱼,会频繁在陆地区102和水区101来回活动。如果弹涂鱼直接从陆地区102进入到水区101,弹涂鱼上粘的泥沙会被带到水区101,从而污染水区101。为此,本发明具体实施例设计了水槽121,请参考附图1:分隔板103包括分隔板主体1031,还包括设置于分隔板主体1031背对水区101一侧的水槽121。水槽121靠近水区101的一侧与水区101连通,因此水区101内的水可以进入到水槽121内。水槽121与分隔板103一样都是与主缸1的前侧板和后侧板相连。水槽121远离水区101的一侧具有第一槽侧板1032。第一槽侧板1032的顶面高于水区101的高潮位。连通管120设置在第一槽侧板1032上。陆地区102的生物进入到水区101时,会先经过水槽121,在经过水槽121时,水槽121内的水会使生物身上的泥沙脱离落下,如此在生物进入到水区101后不会再污染水区101。从生物身上落下的泥沙会沉淀到水槽121的底部。
在水槽121靠近水区101的一侧,分隔板主体1031的上部形成水槽121的第二槽侧板,第二槽侧板的顶面低于水区101的低潮位。如此水区101无论处于高潮位还是低潮位,水槽121和水区101的水都是连通的,如此利于水槽121和水区101之间水的流通,便于吸出水槽121内的泥沙。
请参考附图12,附图12为分隔板103倾斜布置的水陆潮汐缸的结构示意图。分隔板103整体自下而上逐渐向陆地区102倾斜。如此比较接近自然海岸效果。另外,分隔板103的靠近水区101的一侧设置有防滑网格板119。水区101的生物,比如蟹类,沿着防滑网格板119爬进陆地区102。
请参考附图1-图11,为分隔板103沿竖直方向设置的实施例,分隔板103不向着陆地区102倾斜看,如图1所示,主缸1的底壁沿水平方向设置,分隔板103与主缸1的底壁垂直。
请参考附图1,为了避免陆地区102的沙子通过第三下水管112进入到底缸2,本发明一具体实施例在陆地区102的底部设置了过滤层。陆地层117设置在过滤层上方。过滤层阻隔沙子,通水流。为了提高排水的顺畅性,本实施例在过滤层的下方设置了底滤架114。底滤架114是一种带撑脚的网格架,其作用是将过滤层垫起来,在其下方形成流水空间,利于陆地层117向流水空间渗水。从陆地层117渗出的水经过过滤层的过滤后流入到流水空间,之后通过第三下水管112流入到底缸2。
请参考附图1,过滤层具体为纳米砖113。纳米砖是一种水族滤材,原本用于鱼缸的生化过滤,在本实施例中纳米砖113布置在陆地区102的泥沙层以下,其作用是对水中沙子等颗粒物进行拦截过滤,同时允许水和滩涂泥透过。
纳米砖113可以是一整块完整的纳米砖,也可以是用多块小块纳米砖拼接而成的组合装置,拼接的时候要注意将其上表面的缝隙用造景泥、水泥等材料封死,或用密封圈、密封条等将其密封,以免沙子落入。
纳米砖113与陆地区102的缸壁的缝隙中设置有密封圈,以防止沙子落入到流水空间。
在本发明另一具体实施中,请参考附图13,过滤层为过滤网123。过滤网12为耐海水腐蚀的硬质过滤网,比如钛网。过滤网123的孔径大小以能够拦截沙子,并且能透过水和滩涂泥为宜。
请参考附图9,陆地区102只铺设干净的沙子,设置为沙滩。由于沙子的保水性不如滩涂泥沙。陆地区102在退潮后,沙滩会比较干燥,为了确保沙滩的湿度,本发明具体实施例作了如下设计:在纳米砖113的下方设置了纳米砖凸起122,纳米砖凸起122向流水空间凸出,可凸出到流水空间一半的高度。当陆地区102退潮后,流水空间内的水可通过纳米砖凸起122和纳米砖113向上渗入到沙滩中,以保持沙滩的湿度。
在陆地区为滩涂泥沙的水陆潮汐缸时,也可以使用上述方案。
第三下水管112上设置有调节阀,调节阀是调节流水空间内的水位。当调节阀的开度调大时,流水空间内的水位下降,纳米砖凸起122接触不到水面,停止渗透吸水。当调节阀的开度减小时,流水空间内的水位上升,纳米砖凸起122能够接触到水面,会向上渗透吸水。因此通过调节调节阀,可以控制渗透吸水和不渗透吸水。该调节阀还能够起到减小第三下水管112的下水噪音的作用。
请参考附图1,上水管除了包括第一上水管107,还包括第二上水管111。第二上水管111的进水口与水泵204的出水口连通,第二上水管111的出水口位于流水空间内,且第二上水管111的出水口设置有用于改变出水方向的支管,支管位于流水空间,以防水流冲击过滤层。第二上水管111的出水口的支管也可以沿水平方向,也可以相对于水平方向向下。如图1所示,第二上水管111的出水口与支管的中部连接,支管的长度方向的两端均能够排水。
第二上水管111和第一上水管107上分别设置有调节阀。水泵204的水能够通过第二上水管111进入到流水空间,以冲洗过滤层的底部,从而防止过滤层堵塞。
水泵204输出的水会同时送往第一上水管107和第二上水管111。第一上水管107和第二上水管111上的调节阀用以调节第一上水管107和第二上水管111中的流量大小。
为了防止在停电时水区101内的水倒流回底缸2,可以在第一上水管107上设置防虹吸孔,也可以在第一上水管107中设置止逆阀。
水陆潮汐缸还包括喷淋装置3,喷淋装置3包括至少一个喷嘴302以及与喷嘴302连接的喷淋管301,喷淋管301的进水口与淡水源连通,用于对主缸1的内壁进行清洗。
在喷淋装置3具有一个喷嘴302的实施例中,喷嘴设置在主缸的中间位置的上方,能够同时对陆地区和水区进行淋洗。
在喷淋装置3具有至少两个喷嘴302的实施例中,一部分喷嘴位于陆地区的上方,一部分喷嘴位于水区的上方。
淡水源可以来自储水容器,由泵输水;或来自安装有净水装置的自来水管,由电磁阀控制输水。喷嘴302为广角类型,以便喷淋时尽可能向水平四周喷射。当主缸1水区101的水位降至低潮位后,开启喷淋装置3,可以将附着在缸壁的海水冲洗到水中,避免缸壁海水蒸发后留下盐渍,喷淋的时机应选择在水区101的水位降至低潮位后,附着在缸壁的海水蒸发之前,此时间由定时开关控制。喷淋装置3主要作用是保持主缸1内壁清洁,有利于观赏性,
请参考附图14和附图15,附图14为水区101退潮时底缸2的水位图。附图15为水区101涨潮时底缸2的水位图。本发明中的水陆潮汐缸的底缸2与普通底滤型鱼缸的底缸2在结构上大致相同,其内部分成数个功能格205,每相邻的两个功能格205之间设置有一分格板组。分格板组包括相对布置的挡流板202和溢流板203。挡流板202可以引导水流,让水流可以流经每个功能格205。溢流板203使一个功能格205中的水溢流入下一个功能格205内。如果底缸2的水位超过挡流板202高度,水流就会直接从挡流板202上方通过,如此便会影响底缸2的过滤效果,因此,挡流板202高度决定了底缸2的最高水位高度。溢流板203可以限制它前面功能格205的最低水位。由于底缸2顺着水流方向的第二个功能格205通常为蛋分格(放置蛋白质分离器),蛋分格需要保持稳定的水位。而主缸1的水区101在涨潮时,底缸2的水量减少,主缸1的水区101在退潮时,底缸2的水量增加,为了使底缸2在水量变化时,蛋分格的水位仍是稳定的,需要对前两格之间的溢流板203,也即蛋分格的上游和下游的溢流板203均需适当加高,但溢流板203仍低于挡流板202,之后的溢流板203适当降低。如此,底缸2的水量变化都集中在蛋分格之后的功能格205。位于蛋分格的上游和下游的两个溢流板203的高度可以相等,或者,位于蛋分格的上游的溢流板203的高度较位于蛋分格的下游的溢流板203的高度高0cm-3cm。
请参考附图16和附图17,附图16为水区101退潮时底缸2的水位图。附图17为水区101涨潮时底缸2的水位图。如果主缸1的陆地区102设置为沙滩,且水区101涨落潮幅度较大的情况下,底缸2的水量变化较大,此时底缸2的挡流板202与常规底滤型鱼缸的挡流板的高度基本相同,溢流板203的高度适当降低,并且沿着水流方向越往后降得越低,呈阶梯状,这样即使底缸2的水量变化较大,其挡流板202和溢流板203仍能正常引导水流方向,此时底缸2所有功能格205的水量都能变化,越往后变化幅度越大。
在本发明的描述中,需要说明的是,术语“上”、“下”、“底”、“水平”、“中心”等指示的方位或位置关系为基于附图所示的方位或位置关系,仅是为了便于描述本申请和简化描述,而不是指示或暗示所指的装置或元件必须具有特定的方位、以特定的方位构造和操作,因此不能理解为对本申请的限制。
除非另有明确的规定和限定,术语“安装”、“相连”、“连接”应做广义理解,例如,可以是固定连接,也可以是可拆卸连接,或一体地连接;可以是机械连接,也可以是电连接;可以是直接相连,也可以通过中间媒介间接相连,可以是两个元件内部的连通。对于本领域的普通技术人员而言,可以具体情况理解上述术语在本发明中的具体含义。
对所公开的实施例的上述说明,使本领域专业技术人员能够实现或使用本发明。对这些实施例的多种修改对本领域的专业技术人员来说将是显而易见的,本文中所定义的一般原理可以在不脱离本发明的精神或范围的情况下,在其它实施例中实现。因此,本发明将不会被限制于本文所示的这些实施例,而是要符合与本文所公开的原理和新颖特点相一致的最宽的范围。



